Cookies op Makelaardij thuis

Fijn dat je verder wilt lezen. We gebruiken cookies om de website naar behoren te laten werken, om functies voor social media te bieden en om onze website te analyseren. Dit gebeurt anoniem. Je gaat akkoord met onze cookies als je onze website blijft gebruiken. Op onze website kun je ook onze Privacy verklaring vinden.

van Riebeeckstraat 69

3131 VT, Vlaardingen

€ 365.000 k.k.
92m²
5 kamers
4 slaapkamers

Omschrijving

In de Van Riebeeckstraat kan je rustig wonen met alle voorzieningen van het stadscentrum op loopafstand. Hier woon je letterlijk om de hoek van alle voorzieningen zoals winkels, scholen, theater en casino! Wandel je graag? Je staat binnen 10 minuten in het stadspark “t Hof”. Er is een goede verbinding van het openbaar vervoer en de uitvalswegen zijn zeer goed bereikbaar.
Deze eindwoning is gelegen in een sfeervolle straat met karakteristieke jaren ’30 woningen en heeft een verrassend ruime woonkamer en de achtertuin is een gezellige stadstuin met achterom. Omdat deze direct achter het winkelgebied is gelegen is er geen inkijk in de tuin. Achter, voor en naast de woning is voldoende parkeerplek aanwezig. De slaapverdieping telt 4 slaapkamers en een badkamer.

Wil je stads wonen met ruimte? Dan zou dit zomaar je nieuwe stek kunnen worden!

Indeling:
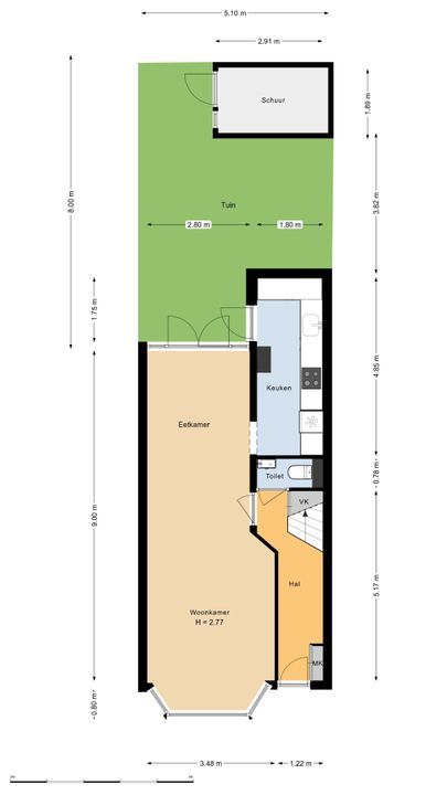
Via de voordeur stap je meteen in de gang. Deze is diep en heeft een meterkast, een trapkast en achterin vind je het geheel betegelde toilet met zwevend closet en fontein.
Tussendeur naar de woonkamer. Deze doorzonwoonkamer heeft een fijne zithoek aan de voorzijde. De erker aan de voorzijde accentueert de ruimte en geeft een leuk zicht op de straat.
Aan de achterzijde is er meer dan genoeg ruimte voor een grote eettafel en er zijn twee openslaande deuren naar de tuin.
De halfopen keuken ligt ook aan de achterzijde en is afgewerkt met een witte hoogglans hoekopstelling voorzien van afzuigkap, 5 pits gaskookplaat, koelkast, vaatwasser, wasmachine en drogeraansluiting en veel kastruimte. Het werkblad is in kunststof uitgevoerd en er is achterwandbetegeling aanwezig. Via de keuken bereik je tevens de achtertuin.
De tuin is op het oosten gelegen en is voorzien van bestrating, een zonnescherm, houten berging en een achterom.
We gaan weer naar binnen en via de trap in de gang bereik je de slaapverdieping.
Deze gehele verdieping is voorzien van een laminaatvloer en boven het trapgat is een kast gerealiseerd voor extra bergruimte.
Slaapkamer I is gelegen aan de achterzijde.
Slaapkamer II is eveneens gelegen aan de achterzijde. Beide slaapkamers zijn afgewerkt met glasvliesbehang op de wanden.
Slaapkamer III is gelegen aan de voorzijde en heeft een doorloop naar slaapkamer IV.

De badkamer is voorzien van witte wand- en donkere vloertegels, een grote inloopdouche, wastafelmeubel en een radiator. Tevens is hier een kast voor de CV.

Bijzonderheden:
-Bouwjaar: 1930;
-Woonoppervlak: 92m²;
-Inhoud: 337m³;
-Gelegen op 96m² erfpachtgrond met einddatum recht 20-11-2039. Het recht kan worden verlengd via een nieuw aanbod na deze datum via de gemeente Gemeente Vlaardingen of tussentijds naar een eeuwigdurend recht van erfpacht;
-Verwarming en warm water door middel van CV-combi (8 jaar oud);
-De elektrische installatie bestaat uit 6 groepen en 2 aardlekschakelaars;
-De kozijnen zijn uitgevoerd in hout met deels dubbele beglazing;
-Parkeren in de straat via parkeervergunning. Er is voor- achter en naast de woning parkeergelegenheid aanwezig;
-Oplevering in overleg, gewenst per medio januari;
-Energielabel F, geldig tot 26-09-2035.

Vraagprijs € 365.000,- k.k.

Woonoppervlakte
De Meetinstructie is gebaseerd op de NEN2580. De Meetinstructie is bedoeld om een meer eenduidige manier van meten toe te passen voor het geven van een indicatie van de gebruiksoppervlakte. De Meetinstructie sluit verschillen in meetuitkomsten niet volledig uit, door bijvoorbeeld interpretatieverschillen, afrondingen of beperkingen bij het uitvoeren van de meting. Indien de exacte maten voor een koper van cruciaal belang zijn, adviseren wij deze zelf na te meten. De (kandidaat)koper(s) zullen, indien gewenst, daartoe in de gelegenheid gesteld worden op een passend moment teneinde teleurstellingen en schade te voorkomen.

Ouderdomsclausule
Bij woningen ouder dan 30 jaar zal er standaard in de koopakte een ouderdomsclausule worden opgenomen.

Notariskeuze en kosten
In principe ligt de notariskeuze bij de koper. Het doorhalen van de hypothecaire inschrijving in het kadaster moet door de verkoper betaald worden. Zijn de kosten van één hypothecaire doorhaling hoger dan € 400,- inclusief BTW dan wordt het meerdere bij de koper in rekening gebracht.
Indien de koper een notaris kiest buiten een straal van 20 kilometer van de verkochte onroerende zaak dan zijn de eventuele kosten die de notaris berekent voor een eventuele verkoopvolmacht en legalisatie hiervan ten behoeve van de verkoper voor rekening van de koper.

Zelfbewoningsplicht
Koper is bekend met de zelfbewoningsplicht welke vanaf 01-01-2023 binnen de gemeente Vlaardingen van kracht is. De verkopend makelaar heeft koper doorverwezen naar de gemeente Vlaardingen omtrent de desbetreffende regelgeving.
Verkoper noch verkopend makelaar aanvaarden geen enkele aansprakelijkheid voor geleden schade wegens het niet juist naleven van deze zelfbewoningsplicht.

Gunning
Verkoper behoudt zich uitdrukkelijk het recht voor het object te gunnen aan de gegadigde van zijn keuze.

Nadrukkelijk zij vermeld dat alle informatie in deze brochure moet beschouwd worden als een uitnodiging tot het doen van een bod of om in onderhandeling te treden. Er kunnen geen rechten worden ontleend aan deze informatie.

Kenmerken

Overdracht

Prijs
€ 365.000 k.k.
Status
Beschikbaar
Oplevering
In overleg

Bouw

Soort woonhuis
Eengezinswoning, Eindwoning
Soort bouw
Bestaande bouw
Bouwjaar
1930
Onderhoud binnen
Goed
Onderhoud buiten
Redelijk

Oppervlakten en inhoud

Woonoppervlakte
92m²
Perceeloppervlakte
96m²
Inhoud
337m³

Indeling

Aantal kamers
5
Aantal slaapkamers
4
Aantal badkamers
1
Aantal verdiepingen
2

Energie

Energielabel
F
Isolatie
Gedeeltelijk dubbel glas
Warm water
C.V.-ketel
Verwarming
C.V.-ketel
Ketel
Intergas (2017, Combi-ketel, Eigendom)

Buitenruimte

Tuin
Achtertuin
Schuur
Vrijstaand hout

Garage


Locatie

[ { "address": "van Riebeeckstraat 69", "zipCode": "3131 VT", "city": "Vlaardingen", "lat": 51.9097753, "lng": 4.3388448, "heading": 0, "pitch": 0 } ]

Voorzieningen

Vervoer

Scholen


BUURTINFORMATIE

Vlaardingen, Centrum

Inwoners

3453
Woningen

6215
Inwoners

Koop / Huur


 % Huur  % Koop

Huishoudens

 Centrum t.o.v  Landelijk.




Eenpersoon
48% - 37.6%


Geen kinderen
27% - 29%


Met kinderen
25% - 33.4%

Leeftijdsopbouw in jaren

 Centrum t.o.v  Landelijk.

Plattegronden

Vergelijkbare woningen

Boterstraat 32

€ 359.000 k.k.

Rozenlaan 38

€ 375.000 k.k.

Oranjelaan 27

€ 419.000 k.k.

Reageer

Vul het onderstaande formulier in en wij doen de rest!

Uw bericht is naar ons verzonden. Wij nemen zo snel mogelijk contact met u op.

Sorry, we kunnen helaas niet met zekerheid vaststellen of u een mens of een geautomatiseerde bot/spammer bent. Hierdoor kunnen we het formulier dat u heeft ingevuld niet verzenden. Probeer het opnieuw of neem direct contact op met de makelaar via e-mail.

Er is iets mis gegaan met het versturen van het formulier.
Controleer of u alle velden (goed) heeft ingevoerd en probeer het nog een keer.

Wilt u een bezichtiging plannen?

Wat zijn uw voorkeurs data? Wij nemen contact met u op om een afspraak te maken.

recaptcha
reCAPTCHA
PrivacyTerms
van

Goedemorgen 👋

Benieuwd naar de waarde van uw huis?

U weet het al binnen 1 minuut. Laten we beginnen!

Wat is de reden van uw aanvraag?
Ik wil graag...

Er zijn meerdere antwoorden mogelijk.

Wanneer wilt u verhuizen?

We zijn er bijna 🎉

Om het rapport op te maken hebben we een aantal gegevens nodig

recaptcha
reCAPTCHA
PrivacyTerms

Uw woningwaarde wordt berekend... 🚀

loading

Bedankt %name%! De woningwaarde van %address% is berekend 🥳

Check uw mail voor het rapport!

success
Wat is mijn huis waard?