Cookies op Makelaardij thuis

Fijn dat je verder wilt lezen. We gebruiken cookies om de website naar behoren te laten werken, om functies voor social media te bieden en om onze website te analyseren. Dit gebeurt anoniem. Je gaat akkoord met onze cookies als je onze website blijft gebruiken. Op onze website kun je ook onze Privacy verklaring vinden.

Oranjelaan 27

3135 ZL, Vlaardingen

€ 419.000 k.k.
98m²
5 kamers
4 slaapkamers

Omschrijving

Welkom bij deze volledig gemoderniseerde woning, gelegen in het charmante en levendige Vlaardingen Ambacht, een wijk vol karakter, gezelligheid en historie.
Deze sfeervolle woning is tot in de puntjes verzorgd en klaar voor de toekomst. Op de begane grond geniet u van een royale lichte woonkamer met een prachtige eikenhouten vloer. Aan de tuinzijde vindt u de moderne open keuken, compleet met inbouwapparatuur en een Quookerkraan, ideaal voor wie van gemak houdt.
De zonnige achtertuin is een heerlijke plek om te ontspannen. Met een verhoogde vlonder aan het huis, een lager gelegen terrasgedeelte met een pergola, een stenen berging en een nieuwe schutting (2025) is het hier echt genieten in alle seizoenen.
Op de eerste verdieping zijn drie slaapkamers waaronder een ruime ouderslaapkamer met toegang tot een eigen balkon. De moderne badkamer heeft een grote inloopdouche, een zwevend toilet en een wastafelmeubel.
Op zolder zorgen twee grote dakkapellen voor een prachtige verdieping met een slaapkamer en een slaapkamer/wasruimte.

De wijk Ambacht is geliefd bij jonge gezinnen - niet voor niets. U vindt hier alles wat u nodig heeft binnen handbereik; scholen (basis- en middelbaar onderwijs), het winkelcentrum Het Van Hogendorpkwartier, het openbaar vervoer (bus en Hoekse Lijn), en uitvalswegen. Een ideale plek om te wonen en op te groeien.

Indeling:
De woning heeft een uitnodigende voortuin met groen en nette bestrating. Binnenkomst via de ruime hal, waarna u wordt verwelkomd in de sfeervolle woonkamer. De prachtige eiken vloer, strakke gestucte wanden en grote raampartijen zorgen voor een warme en eigentijdse uitstraling.
De moderne keuken open keuken is uitgevoerd in het wit met een grijs aanrechtblad en is voorzien van een inductiekookplaat, een RVS afzuigkap, een koel-/vriescombinatie, een vaatwasser, een oven en een Quooker kraan.
De modern toiletruimte is eveneens helemaal van nu met witte metro wandbetegeling, Portugese vloertegels met elektrische vloerverwarming, een zwevend toilet en een fonteintje.
Vanuit de keuken stapt u zo de gezellige achtertuin in. Hier geniet u van een verhoogde vlonder aan de woning, fraaie bestrating, een houten pergola voor extra sfeer en een stenen berging. In 2025 is er een nieuwe schutting geplaatst.

1e verdieping:
Ruime overloop.
Slaapkamer I, gelegen aan de achterzijde van de woning, met toegang tot het balkon. Op het balkon is een praktische houten kast.
Slaapkamer II, gelegen aan de voorzijde van de woning. Deze kamer is opgedeeld in twee kamers. Ideaal als kinderkamers, kledingkamer of werkruimte.
De moderne badkamer is fris en strak afgewerkt met crème wandtegels en taupe vloertegels. Hier vindt u een ruime inloopdouche, een modern wastafelmeubel met een waskom en eiken blad, een verlichte en verwarmde spiegel, een handdoekradiator en een zwevend toilet.

2e verdieping:
Deze gehele verdieping is strak gestuct en de plafonds zijn voorzien van spotverlichting. Er zijn twee ruime kamers met beide een grote dakkapel (2019). De slaapkamer aan de voorzijde beschikt over een elektrisch rolluik. De kamer aan de achterzijde heeft een handige wasruimte met de aansluitingen voor de wasmachine en droger en de opstelling van de c.v. combiketel (Remeha).
Beide kamers hebben handige opbergruimte achter de knieschotten.

Bijzonderheden:
- Woonoppervlakte ca. 98 m², gemeten volgens NEN2580 norm
- Inhoud ca. 368 m³
- Bouwjaar 1938
- Gelegen op 114 m² eigen grond
- Geheel voorzien van dubbele beglazing
- Verwarming en warm water middels c.v. ketel (Remeha 2019)
- Onlangs is de gehele buitenzijde van de woning geschilderd
- De kruipruimte is geïsoleerd met bodemfolie en vloerisolatie
- Energielabel C, geldig tot 20-08-2035
- Oplevering in overleg, bij voorkeur per 1 februari 2026

Vraagprijs € 419.000,- k.k.

Woonoppervlakte
De Meetinstructie is gebaseerd op de NEN2580. De Meetinstructie is bedoeld om een meer eenduidige manier van meten toe te passen voor het geven van een indicatie van de gebruiksoppervlakte. De Meetinstructie sluit verschillen in meetuitkomsten niet volledig uit, door bijvoorbeeld interpretatieverschillen, afrondingen of beperkingen bij het uitvoeren van de meting. Indien de exacte maten voor een koper van cruciaal belang zijn, adviseren wij deze zelf na te meten. De (kandidaat)koper(s) zullen, indien gewenst, daartoe in de gelegenheid gesteld worden op een passend moment teneinde teleurstellingen en schade te voorkomen.

Ouderdomsclausule
Bij woningen ouder dan 30 jaar zal er standaard in de koopakte een ouderdomsclausule worden opgenomen.

Notariskeuze en kosten
In principe ligt de notariskeuze bij de koper. Het doorhalen van de hypothecaire inschrijving in het kadaster moet door de verkoper betaald worden. Zijn de kosten van één hypothecaire doorhaling hoger dan € 400,- inclusief BTW dan wordt het meerdere bij de koper in rekening gebracht.
Indien de koper een notaris kiest buiten een straal van 20 kilometer van de verkochte onroerende zaak dan zijn de eventuele kosten die de notaris berekent voor een eventuele verkoopvolmacht en legalisatie hiervan ten behoeve van de verkoper voor rekening van de koper.

Zelfbewoningsplicht
Koper is bekend met de zelfbewoningsplicht welke vanaf 01-01-2023 binnen de gemeente Vlaardingen van kracht is. De verkopend makelaar heeft koper doorverwezen naar de gemeente Vlaardingen omtrent de desbetreffende regelgeving.
Verkoper noch verkopend makelaar aanvaarden geen enkele aansprakelijkheid voor geleden schade wegens het niet juist naleven van deze zelfbewoningsplicht.

Gunning
Verkoper behoudt zich uitdrukkelijk het recht voor het object te gunnen aan de gegadigde van zijn keuze.

Nadrukkelijk zij vermeld dat alle informatie in deze brochure moet beschouwd worden als een uitnodiging tot het doen van een bod of om in onderhandeling te treden. Er kunnen geen rechten worden ontleend aan deze informatie.

Kenmerken

Overdracht

Prijs
€ 419.000 k.k.
Status
Beschikbaar
Oplevering
In overleg

Bouw

Soort woonhuis
Eengezinswoning, Tussenwoning
Soort bouw
Bestaande bouw
Bouwjaar
1938
Onderhoud binnen
Goed
Onderhoud buiten
Goed

Oppervlakten en inhoud

Woonoppervlakte
98m²
Perceeloppervlakte
114m²
Overig oppervlakte
1m²
Inhoud
368m³

Indeling

Aantal kamers
5
Aantal slaapkamers
4
Aantal badkamers
1
Aantal verdiepingen
3

Energie

Energielabel
C
Isolatie
Dubbel glas
Warm water
C.V.-ketel
Verwarming
C.V.-ketel
Ketel
Remeha (2019, Combi-ketel, Eigendom)

Buitenruimte

Ligging
In woonwijk
Balkon
Ja
Tuin
Achtertuin, Voortuin
Achtertuin
Oost, 37m², 498×749cm
Schuur
Vrijstaand steen

Garage


Locatie

[ { "address": "Oranjelaan 27", "zipCode": "3135 ZL", "city": "Vlaardingen", "lat": 51.9187815, "lng": 4.3457532, "heading": 0, "pitch": 0 } ]

Voorzieningen

Vervoer

Scholen


BUURTINFORMATIE

Vlaardingen, Oranjebuurt

Inwoners

457
Woningen

1245
Inwoners

Koop / Huur


 % Huur  % Koop

Huishoudens

 Oranjebuurt t.o.v  Landelijk.




Eenpersoon
14% - 37.6%


Geen kinderen
33% - 29%


Met kinderen
53% - 33.4%

Leeftijdsopbouw in jaren

 Oranjebuurt t.o.v  Landelijk.

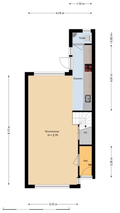
Plattegronden

Vergelijkbare woningen

Boterstraat 32

€ 359.000 k.k.

van der Duynstraat 27

€ 499.000 k.k.

Reageer

Vul het onderstaande formulier in en wij doen de rest!

Uw bericht is naar ons verzonden. Wij nemen zo snel mogelijk contact met u op.

Sorry, we kunnen helaas niet met zekerheid vaststellen of u een mens of een geautomatiseerde bot/spammer bent. Hierdoor kunnen we het formulier dat u heeft ingevuld niet verzenden. Probeer het opnieuw of neem direct contact op met de makelaar via e-mail.

Er is iets mis gegaan met het versturen van het formulier.
Controleer of u alle velden (goed) heeft ingevoerd en probeer het nog een keer.

Wilt u een bezichtiging plannen?

Wat zijn uw voorkeurs data? Wij nemen contact met u op om een afspraak te maken.

recaptcha
reCAPTCHA
PrivacyTerms
van

Goedemiddag 👋

Benieuwd naar de waarde van uw huis?

U weet het al binnen 1 minuut. Laten we beginnen!

Wat is de reden van uw aanvraag?
Ik wil graag...

Er zijn meerdere antwoorden mogelijk.

Wanneer wilt u verhuizen?

We zijn er bijna 🎉

Om het rapport op te maken hebben we een aantal gegevens nodig

recaptcha
reCAPTCHA
PrivacyTerms

Uw woningwaarde wordt berekend... 🚀

loading

Bedankt %name%! De woningwaarde van %address% is berekend 🥳

Check uw mail voor het rapport!

success
Wat is mijn huis waard?